BA及BC停产通知

上传时间:2020-01-04  点击次数:9261

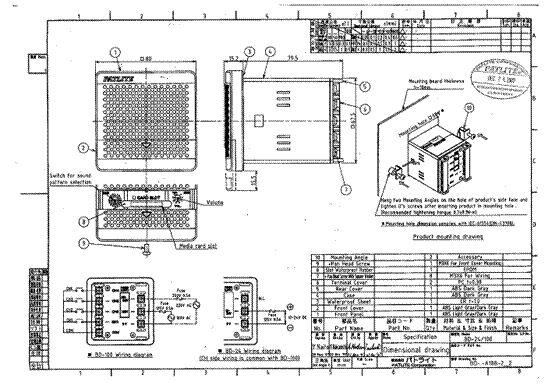
clip_image001.gifclip_image003.gif